Stalowy regulator przepływu jest stosowany do ograniczania natężenia odpływu wód deszczowych i ścieków. Zapewnia stabilizację przepływu, chroniąc systemy kanalizacyjne przed przeciążeniem podczas intensywnych opadów.
Korzyści dla użytkownika:
- Kontrola natężenia przepływu wód deszczowych
- Ochrona systemów kanalizacyjnych przed przeciążeniem
- Trwała konstrukcja stalowa odporna na korozję
- Możliwość montażu w różnych typach studni
Regulatory przepływu wody i ścieków stosuje się do ograniczenia wartości natężenia odpływu do kolektorów kanalizacyjnych lub rowów i cieków wodnych, podczas występowania zjawiska deszczu nawalnego.
Efektem ograniczania wartości natężenia odpływu jest wzrost poziomu zwierciadła ścieków przed regulatorem, stad regulatory są rekomendowane do współpracy ze zbiornikiem retencyjnym otwartym lub zamkniętym. Regulatory mogą być montowane na kolektorach i kanałach w studniach lub komorach, jak również bezpośrednio przy odpływach ze zbiorników retencyjnych. Można je również stosować w układach sieci bez zbiorników retencyjnych ale z odpowiednio zabudowanym obejściem hydraulicznym.
Każdy regulator przepływu jest projektowany indywidualnie do zadanych warunków pracy.
Dla potrzeb prawidłowego doboru regulatora przepływu należy określić następujące dane wyjściowe:
- QRG [dm3/s] – nominalna wartość natężenia odpływu z regulatora przepływu,
- hmax [m] – wartość maksymalnej wysokości spiętrzenia wody przed regulatorem przepływu,
- DN [mm] – średnice wylotu ze zbiornika retencyjnego lub kanału odpływowego ze studni (komory),
- [%] – spadek kanału odpływowego.

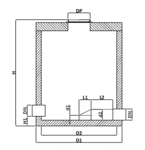
Stalowy stożkowy hydrodynamiczny regulator przepływu wody DEF-SPIN można stosować w zakresie wdajności przepływu 1-1000 [l/s]. Regulator ten można montować „na mokro” bezpośrednio w zbiorniku retencyjnym, rowie, kanale lub cieku oraz w studniach i komorach, natomiast montaż „na sucho” stosuje się wyłącznie w szczelnych studniach lub komorach.
Stalowy cylindryczny hydrodynamiczny regulator przepływu wody DEF-VOX można stosować w zakresie wydanności 2-1000 [l/s]. Regulator ten można montować na odpływie lub na dopływie.
Stalowy rurowy regulator przepływu DEF-RG-C można stosować w zakresie wydajności 10-1000 [l/s]. Regulator ten można montować wyłącznie „na mokro”, bezpośrednio w zbiorniku retencyjnym, rowie, kanale lub cieku oraz w studniach i komorach.