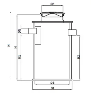
Osadniki pisaku i szlamu DEC i B-DEC to urządzenia przepływowe przeznaczone do oddzielania zawiesin mineralnych zawartych w ściekach m.in przed separatorami ropopochodnych i tłuszczu.
Osadnik powoduje spowolnienie przepływu wody, a w wyniku zachodzącej w nim sedymentacji, pod wpływem działania siły grawitacji gęstsze od wody cząsteczki osadzają się na jego dnie i tam są magazynowane.
Osadniki zawiesin mineralnych zapewniają prawidłową pracę separatorów substancji ropopochodnych i separatorów tłuszczu. Mogą być również stosowane jako samodzielne urządzenia skutecznie usuwające zawiesiny mineralne.
Wlot do osadnika wyposażony jest w deflektor dopływu.

Wykonany z rury spiro. Mają one zastosowanie, jako osadniki wolnostojące w pomieszczeniach, osadniki do zabudowy w gruncie w terenie zielonym, a także do zabudowy w ciągach komunikacyjnych po zastosowaniu pierścienia odciążającego i włazu żeliwnego.
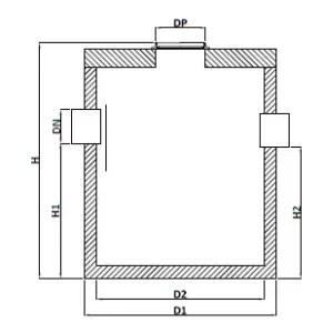
Stosuje się do zabudowy w gruncie w terenach obciążonych ruchem komunikacyjnym.